Red Deer Road, Radbrook, Shrewsbury
Located in a lovely setting with south facing rear garden and open views to front. This attractively designed family home offers superb accommodation with a large driveway and double garage, whilst being conveniently situated in a popular area of the town, close to good schools and within easy reach of the bypass.
Property Details
All mains services are connected
KEY FEATURES
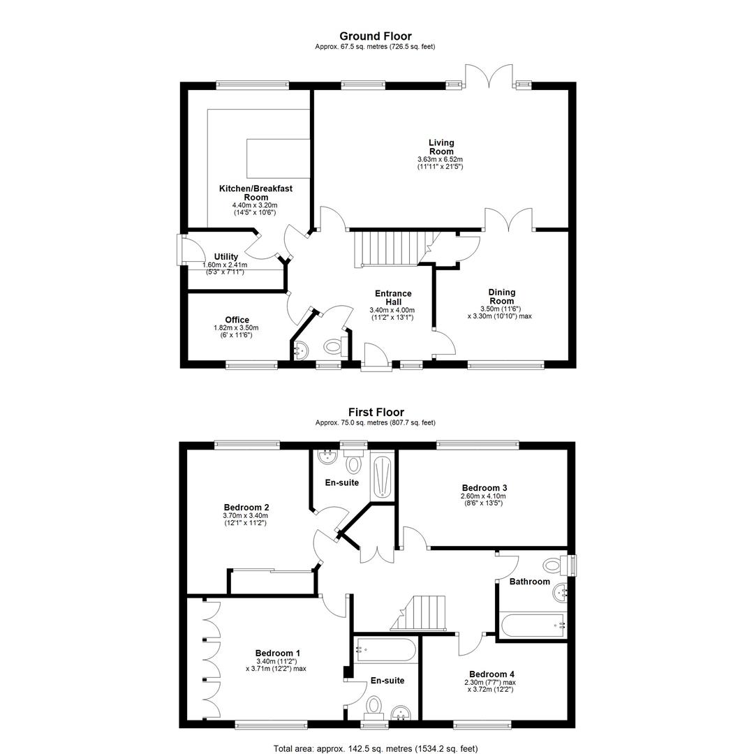
* Covered entrance area to a good-sized hall with doors to living areas and cloakroom.
* Large living room with window and glazed double doors to rear garden.
* Family room/office and a separate dining room which also has double doors connecting to the living room.
* Well fitted kitchen with integrated appliances and breakfast bar. There is also an adjoining utility room with door to side.
* Staircase from hall to landing where there are 4 bedrooms and a family bathroom. Two of the bedrooms also have built in wardrobes and en suite shower or bathrooms.
* uPVC double glazed windows and gas fired central heating.
* 4 car driveway to rear which also provides access to a double garage.
* Private and secure south facing rear garden that’s laid mainly to lawn with established beds, paved pathways and sun terraces.
* Really nice setting in a great location, just a few miles from the town centre and within walking distance of various good schools such as the new Bowbrook primary and Priory secondary.
* No onward chain.
ENTRANCE HALL about 3.4 x 4 (about 11'1" x 13'1")
LIVING ROOM about 3.6 x 6.5 (about 11'9" x 21'3")
DINING ROOM about 3.5 x 3.3 (about 11'5" x 10'9")
KITCHEN/BREAKFAST ROOM about 4.4 x 3.2 (about 14'5" x 10'5")
UTILITY about 1.6 x 2.4 (about 5'2" x 7'10")
OFFICE about 1.8 x 3.5 (about 5'10" x 11'5")
CLOAKROOM
BEDROOM ONE about 3.4 x 3.7 (about 11'1" x 12'1")
ENSUITE
BEDROOM TWO about 3.7 x 3.4 (about 12'1" x 11'1")
ENSUITE
BEDROOM THREE about 2.6 x 4.1 (about 8'6" x 13'5")
BEDROOM FOUR about 2.3 x 3.7 (about 7'6" x 12'1")
BATHROOM










































Share this page