Kingston House, St Alkmunds Square, Shrewsbury
Rare opportunity to acquire freehold a prominent Grade II listed building in town centre Shrewsbury off St. Alkmund’s Square.
Property Features
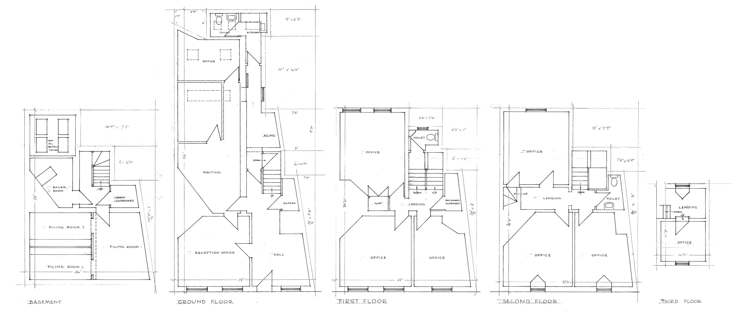
- Approximately 2,138 sq ft. (198.84 m²) arranged over five floors.
- Let to Clarkes Solicitors on a 5 year Internal Repairing and Insuring lease, expires August 2029 (see Tenancy Schedule).
- Located on St. Alkmund’s Square, opposite St. Alkmund’s Church.
- The property is a short walk from all main town centre amenities.
- Street parking and surface level car parks are within walking distance, as well as Shrewsbury Railway and Bus Stations.
Property Details
The property comprises an imposing mid-terrace grade II listed building originally constructed circa 1700 as a town house. It has subsequently been converted to provide office accommodation but retains many of the historic period and architectural features. There is clearly potential for the property to be converted back to residential use subject to planning and vacant possession. Internally, accommodation is arranged over ground and three upper floors with ancillary storage provided at basement level. The property is let to Clarkes Solicitors who recently completed a lease renewal which was backdated to 2024. Please see the Tenancy Schedule for details.
Location
The property is situated within the historic Shrewsbury town centre in the attractive St. Alkmund’s Square. The area is characterised by a variety of period buildings including the 15th Century Abbots House, St. Alkmund’s Church which dates back to the 12th Century and Bear Steps, a 14th Century timber frame building now home to a café and Art Gallery, as well as a variety of traditional 18th century brick buildings that make up the majority of Shrewsbury town centre’s urban landscape.
St. Alkmunds Square has vehicular access via the town centre’s one way road system, but is predominantly a pedestrian area.
Available Area
















Share this page