3 Shoplatch, Shrewsbury
Ground floor retail unit available to let with excellent frontage onto Shoplatch.
Property Features
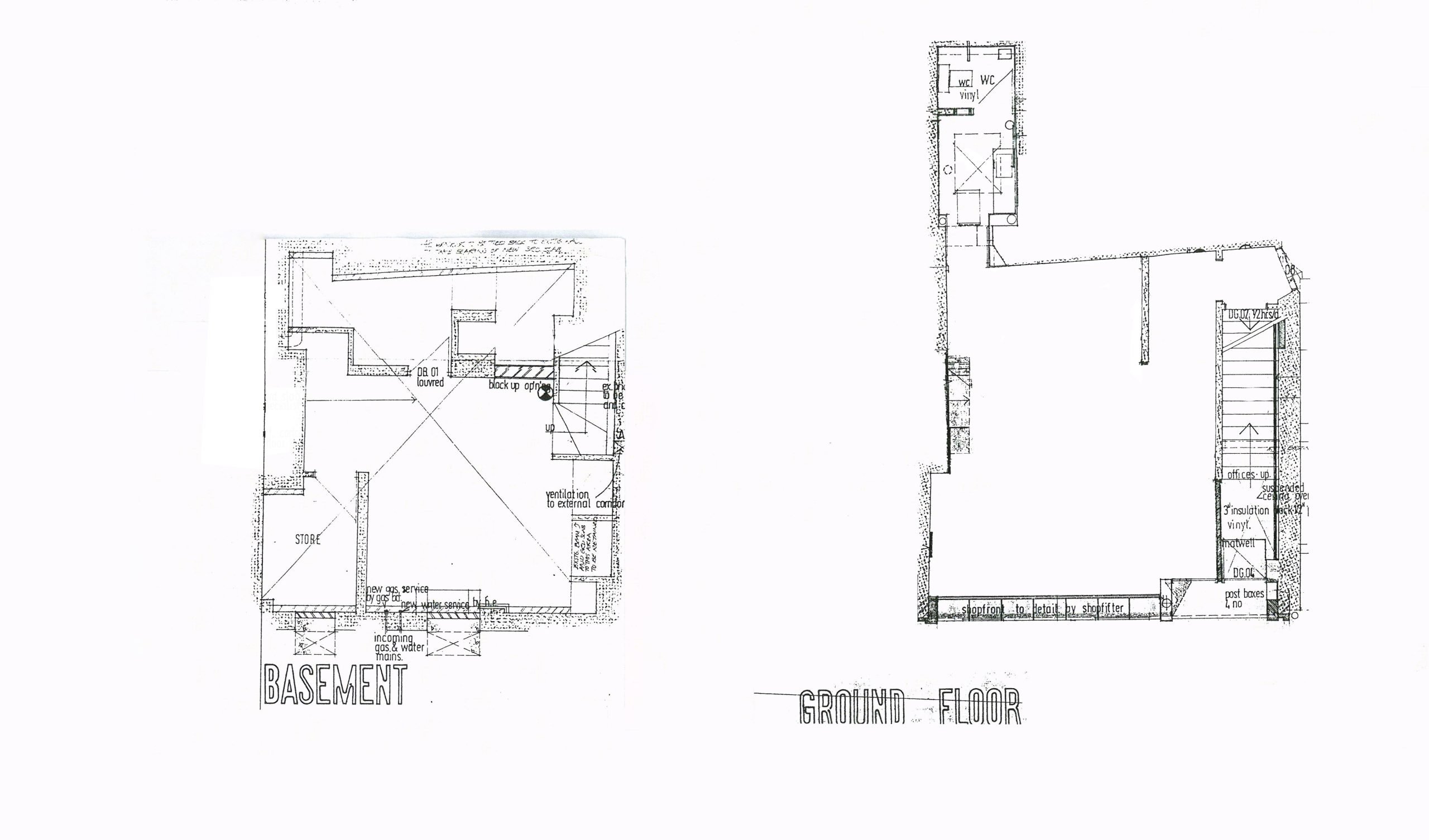
- Approximately 616 sq ft (57.23 m²) NIA including basement.
- Good double fronted retail shop window.
- Located opposite Shrewsbury's award winning Market Hall.
- Ready for Tenant’s shop fit with numerous parking / loading laybys outside the property and along the street, with other public car parks nearby.
- Suspended ceiling and a wall mounted air conditioning unit.
- Nearby occupiers include a range of National and Local businesses including Nat-West Bank, Blacks, a variety of Estate Agents and Domino’s Pizza, with the prime retail pitch of Pride Hill a short distance away.
Property Details
The property comprises a substantial town centre building constructed of brick elevations beneath a pitched and part hung tile roof in the local late 19th Century style. Occupying the ground floor and basement, the property retains a period character while offering adaptable space for a variety of business uses, subject to necessary consents.
To the rear of the unit is a small kitchenette and WC and the stairs down to the basement.
Location
The property is situated in a busy trading position directly opposite the award winning Shrewsbury Market Hall. It sits amongst a range of national and local businesses including Nat West Bank, Blacks, a variety of Estate Agents and Domino’s Pizza, with the prime retail pitch of Pride Hill a short distance away.
Shrewsbury is the county town of Shropshire being located approximately 48 miles North-West of Birmingham, 43 miles South of Chester, and 17 miles West of Telford.
The town benefits from excellent transport links with arterial roads leading from the A5 (T) to the M54 motorway and on towards the M6 and the rest of the country’s national motorway network. The Town is also located off the A49 Hereford to Cheshire trunk road and at the beginning of the A458 to mid-Wales.
There are also direct rail services to London Euston (approximately 2 hours 41 minutes) and also to Birmingham, Manchester and Cardiff.
Shrewsbury has a resident urban population of approximately 80,000 people with a County-wide population in excess of 325,000.
Shrewsbury and Retail:
In 2024, Shrewsbury was named number one in the Telegraph’s list of UK’s best high streets. Shrewsbury Market Hall has also been voted ‘Britain’s Favourite Market’ for an unprecedented” third year running and a record 4th time at the 2025 Great British Market awards. The town is also home to Wyle Cop which is reputedly the longest uninterrupted run of independent traders in the Country. Given such accolades, it is hardly surprising that Shrewsbury’s footfall figures for 2025 were up 20% on the previous year with more than £135 million spent by visitors to it’s town centre shops and businesses, outperforming GB benchmarks
Available Area










Share this page